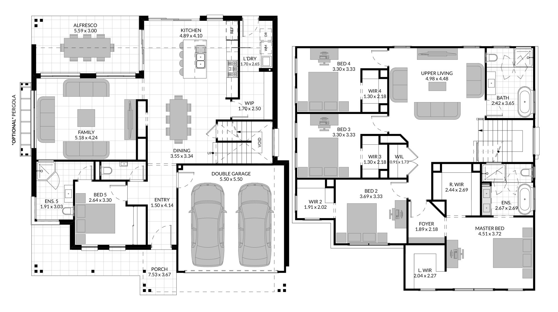
Waterford
Suits 16.50m+ Lot Width
5
3.5
2Dimensions
| Width | 13.37m |
| Length | 13.37m |
| Total | 319.61m2 |
Min Land Requirements
| Width | 16.50m |
| Length | 24.00m |
Facades available
with the Waterford
Facade images are to be used as a guide only...



Unmatched value, premium finishes
and energy-smart living.
and energy-smart living.
Thank you from the bottom of our hearts Kaplan, for making the Juma's family dream home possible from the beginning to the end. We heard other people's struggles with building their new homes and we have nothing bad to say about Kaplan except how much we bragged about our builder and we'll continue to do so.
Esat & Eden
Enquire about
the Waterford
7 DISPLAY HOME LOCATIONS ACROSS SYDNEY







