Facades available
with the Sevilla
Facade images are to be used as a guide only...
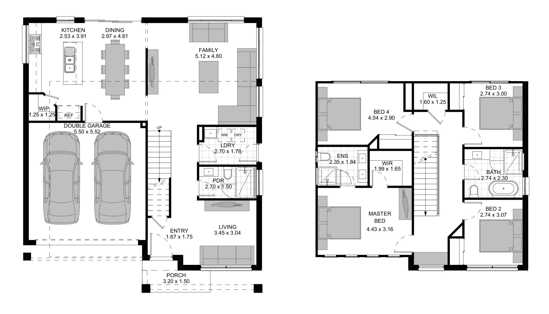
TAKE A LOOK INSIDE THE Sevilla
Virtual 3D Tour



Unmatched value, premium finishes
and energy-smart living.
and energy-smart living.
Thank you from the bottom of our hearts Kaplan, for making the Juma's family dream home possible from the beginning to the end. We heard other people's struggles with building their new homes and we have nothing bad to say about Kaplan except how much we bragged about our builder and we'll continue to do so.
Esat & Eden
Enquire about
the Sevilla
7 DISPLAY HOME LOCATIONS ACROSS SYDNEY














