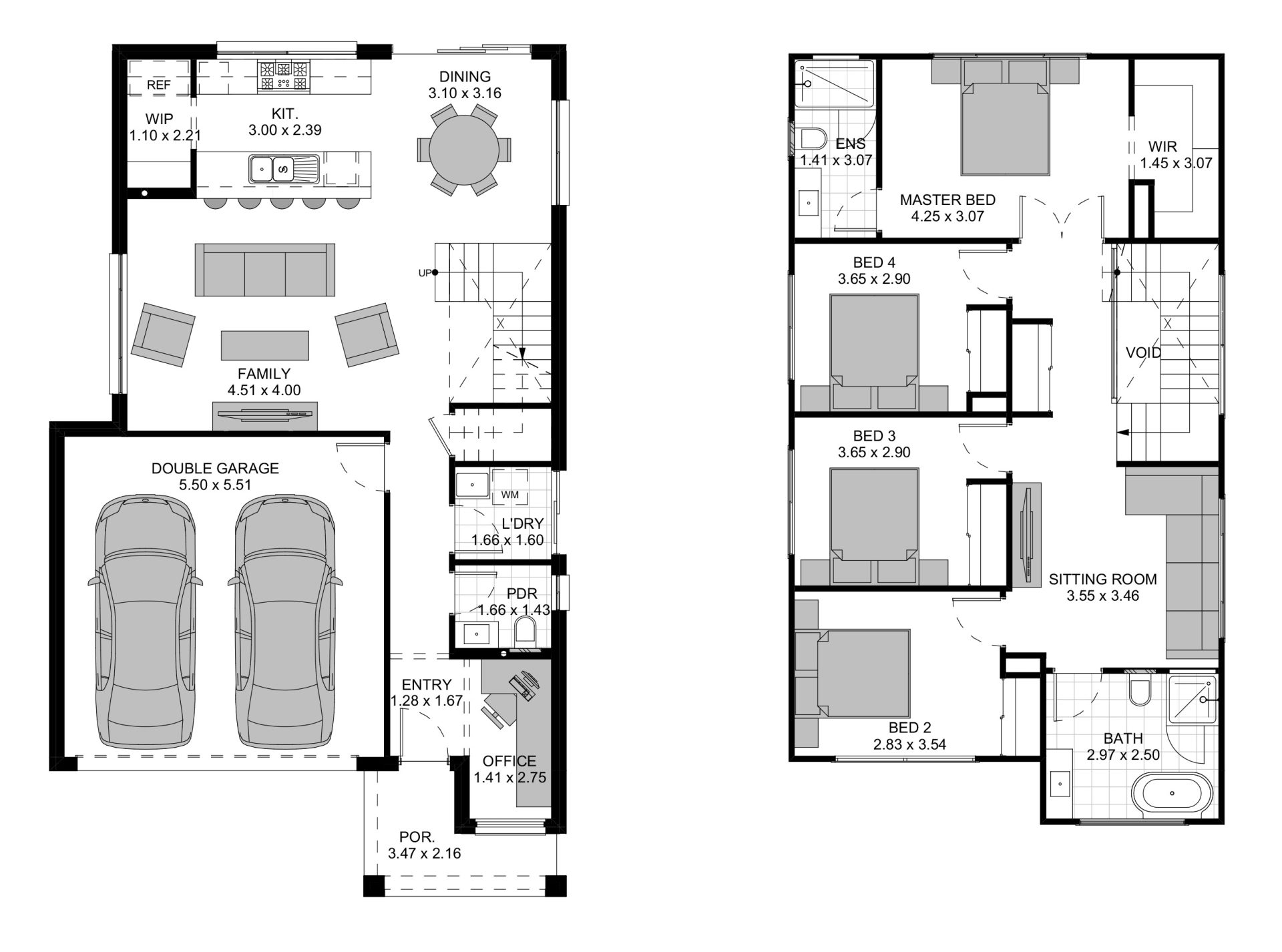
Northbrook
Suits 10m+ Lot Width
Facades available
with the Northbrook
Facade images are to be used as a guide only...
TAKE A LOOK INSIDE THE Northbrook
Virtual 3D Tour


Unmatched value, premium finishes and
energy-smart living for just $19K.
energy-smart living for just $19K.
Thank you from the bottom of our hearts Kaplan, for making the Juma's family dream home possible from the beginning to the end. We heard other people's struggles with building their new homes and we have nothing bad to say about Kaplan except how much we bragged about our builder and we'll continue to do so.
Esat & Eden
Enquire about
the Northbrook
7 DISPLAY HOME LOCATIONS ACROSS SYDNEY



















